Casa singola In Vendita a Casalnoceto

Casalnoceto
180.000 €
Codice:AB APPRTAMENTI IN VILLA
Caratteristiche principali
90
3
Locali
2
Camere
1
Bagni
1
Box auto
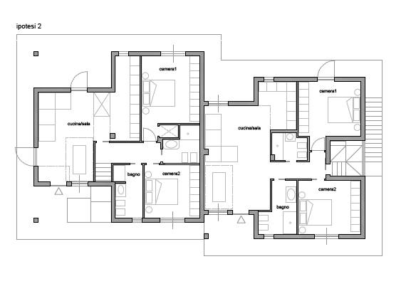
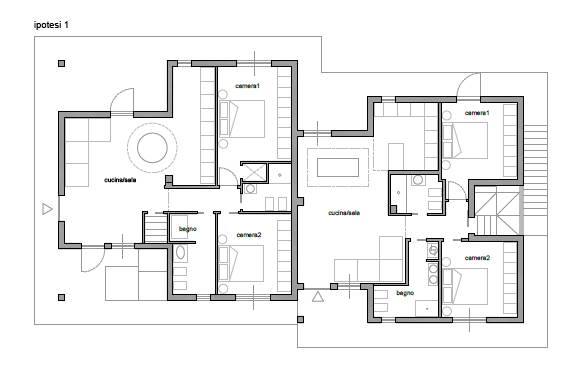
Descrizione
Appartamento in villa indipendente con giardino privato, senza spese condominiali.

Soluzione rara sul mercato: abitazione di nuova realizzazione, disposta su un unico livello, ideale per chi cerca indipendenza totale senza rinunciare alla comodità.

L’immobile è composto da:

luminosa zona giorno con cucina a vista
due camere da letto
bagno
box e giardino privato

Ingresso completamente indipendente e spazi esterni privati, perfetti per vivere all’aperto.

Contesto tranquillo e riservato, lontano dal traffico ma comodo ai principali servizi.

Ideale sia come prima casa che come investimento.

Possibilità di personalizzazione interna ed esterna.
Caratteristiche
Codice:
AB APPRTAMENTI IN VILLA
Città:
Casalnoceto
Categoria:
Casa singola
Locali:
3
Camere:
2
Bagni:
1
Mq:
90
Box auto:
1
Posti auto:
2
Classe energetica:
In fase di valutazione
Condividi su
Cookie preference